熊猫体育,熊猫体育官网,熊猫体育平台,熊猫体育网址

Contact Number
400-8268-006
低压成套柜
PRODUCT

GGD 交流低压配电柜


概述

GGD系列交流低压配电柜适用于发电厂、变电所、工矿企业等电力用户作为 AC50Hz,额定工作电压400V,额定电流至3150A的配电系统中作为动力、照明 及配电设备的电能转换,分配与控制用。该成套设备产品分断能力高,额定短时 耐受电流至50kA。线路方案灵活、组合方便、实用性强、结构新颖特点,是** 组装式固定面板开关柜代表性产品。 本

电气产品已获得****强制性产品认证证书。

产品符合GB/T7251.12-2013《低压成套开关设备和控制设备第1部分:型式 试验和部分型式试验成套设备》、IEC60439-1等标准的要求。

正常使用环境

● 环境温度:-5℃~+40℃,24h内的平均温度不高于+35℃。

● 海拔高度:不高于2000m。

● 相对湿度:在*高温度+40℃时不超过50%,在较低温度时允许有较大相对湿度(例如在+20℃时为90%),应考虑由于温度的变化可能偶然产生凝露的影响。

● 设备安装时与垂直面的倾斜度不超过5°。

● 设备应安装在无剧烈振动和冲击的地方,以及不易使电器元件和材料受到腐蚀的场所。

● 用户有特殊要求可与本公司技术工程师协商解决。

 

型号含义

 

技术参数

主要电气参数

型号

额定电压 (V)

额定电流 (A)

额定重短路 开断电流 (kA)

额定短路耐受电流 (1s)(kA)

额定峰值 耐受电流 (kA)

15

15

30

GGD1

400

100

630(600)

400

GGD2

400

1600(1500)

30

30

63

1000

630(600)

GGD3

400

3150

50

50

105

2500

2000

 

主电路方案

GGD系列设计了133个方案,共310个规格,其中:GGD1系列49个方案,123个规格;GGD2系列53个方案,107个规格; GGD3系列27个方案,68个规格;GGJ1/GGJ系列24个方案,12个规格。

 

辅助电路方案

辅助电路方案设计分成供用电方案和发电厂方案两部份。

 

主母线

1、GGD1、GGD2采用单母排铝线(也可采用单母排铜母线),GGD3 采用双母排铜线,表面采用抗氧化工艺(亦可采用搪镀锡工艺)。

2、水平母选用

 

额定电流 (A)

铜母线规格 (mm)

400

40x4

630(600)A

50x5

1250

60x10

1600

80x10

2000

2x(60x10)

2500

2x(80x10)

3150

2x(100x10)

 

3、中性接地母线选用

相导线截面积 (mm2)

PE(N) 线截面积 (mm2)

500-720

40x4

1200

50x5

>1200

60x10

 

元器件选择

主要采用国内成熟产品(**强制淘汰产品除外)如DW15、DW17、DW45、 CW1、DZ20、CM1、CJX2、JR36、JR20及HD13BX、HS13BX等,采购方便、 成本较低、技术成熟。

 

结构特点

1、GGD型交流低压配电柜柜体采用通用柜形式,采用G型材组装,整个柜体由 中泰钣金车间自行生产,从而保证了柜体的精度、强度和品质。柜体的零部件按 模数20mm安装孔进行设计,通用系数高。极大地提高了工作效益,为确保保质 保量按时给用户供货提供了保证。 2、

GGD型柜体在设计时充分地考虑了运行中散热问题,设计成上下两端散热槽 孔,而形成空气对流方式,散热性能可靠**。 3

、GGD型柜按照现代工艺产品设计理念采用黄金分割法,确保柜形美观大方。

4 、柜门用转轴式活动铰链与柜架相连,安装检修均很便利。

5、柜体表面采用高电压静电喷塑工艺,附着力强,整体呈亚光色调。

6、柜体防护等级为IP30,可根据用户需求制造IP20~IP40之间的产品。

 

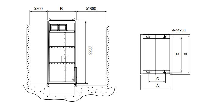
外形安装尺寸图

 

 

产品外形代号

A

B

C

D

备注

06

600

600

450

550

 

06A

600

800

450

750

 

08

800

600

650

550

 

08A

800

800

650

750

 

10

1000

600

850

550

 

10A

1000

800

850

750

 

12

1200

800

1050

750

 

 

安装与使用

1、产品到达收货地点后,应会同生产厂家技术人员,用户代表及供电部门专家一起
进行检查。
a、是否存在由于运输问题而造成产品损伤/损坏。
b、随机清单是否齐全完备(如装箱清单;例行检验记录、确认检验记录、运行检查记
录、产品质量合格证、产品说明书、制造规范书、开孔图、二次线接线图、相关用户
更改记录、柜门钥匙/操作手柄,以及订货合同中规定的备件等)。
2、产品安装拼柜,基础槽钢和螺栓由用户自备,主母线搭接面要进行压花工艺并要
涂上接头处导电膏,再按力矩仪将螺栓固定,并用φ0.01塞尺进行检验。
3、投入运行前检查
a、按照接线图及制造规范书检查电气产品是否符合订货合同要求及是否正确
b、母线连接是否牢固及符合成套制造工艺;
c、手动/电动操作,操作机构是否灵活,联锁是否可靠:
d、主接地是否可靠连续,接地电阻<0.1Ω;
e、绝缘电阻≥5MΩ,干式常温状态。

 

订货须知

1、产品全型号, (包括主电路方案号和辅助电路方案号)
2、主电路系统组合顺序图;
3、柜体平面布置图;
4、辅助电路电气原理图;
5、柜内元器件清单;
6、电路中电压、电流、时间等整定参数;
7、与正常使用条件不相符的特殊要求。

 

总部
浙江温州柳市中泰科技园
热线:0577-62785777  热线:18957777082 传真:0577-62785777
分部
黑龙江大庆万宝工业园区
电话:0459-6778555  传真:0459-6778666 邮箱:cnzt@auntink.com
扫一扫 关注我
中泰科技公众号
Copyright © 中泰科技 All Rights Reserved.    浙ICP备49433669号-1
熊猫体育